DPE – Firmă de construcții – antreprenor general pentru case unifamiliale. Lucrăm de luni până vineri (08:00–17:00)
Lucrăm de luni până vineri (08:00–17:00)

Sună

sau trimite

ECO 81 Classic

ECO 81 Classic

Casă parter eficientă energetic

CONSTRUIM ACEASTĂ CASĂ ÎN 6 LUNI

Compartimentare funcțională inteligentă

Soluții arhitecturale practice

Spațiul ideal pentru locuit

Design și estetică modernă

Descrierea proiectului

ECO 81 Classic – este un proiect care îmbină estetica clasică cu funcționalitatea și designul modern. Acoperișul în două ape și forma variată a clădirii fac din acesta proiectul ideal pentru persoanele care apreciază confortul, apropierea de natură și absența barierelor arhitecturale. Spațiile planificate cu atenție sunt capabile să asigure confort și intimitate, dar și un spațiu comun, chiar și pentru o familie mai mare. Un element caracteristic este terasa de colț acoperită. Aceasta nu reprezintă doar o zonă de relaxare, ci și un tampon natural care protejează interiorul de lumina excesivă a soarelui.

Plan parter
  1. Vestibul 4,84 m²
  2. Cameră tehnică 3,92 m²
  3. WC 1,84 m²
  4. Hol / Coridor 2,12 m²
  5. Dormitor 1 7,84 m²
  6. Living + dining 18,68 m²
  7. Bucătărie 6,74 m²
  8. Total: 45,98 m²
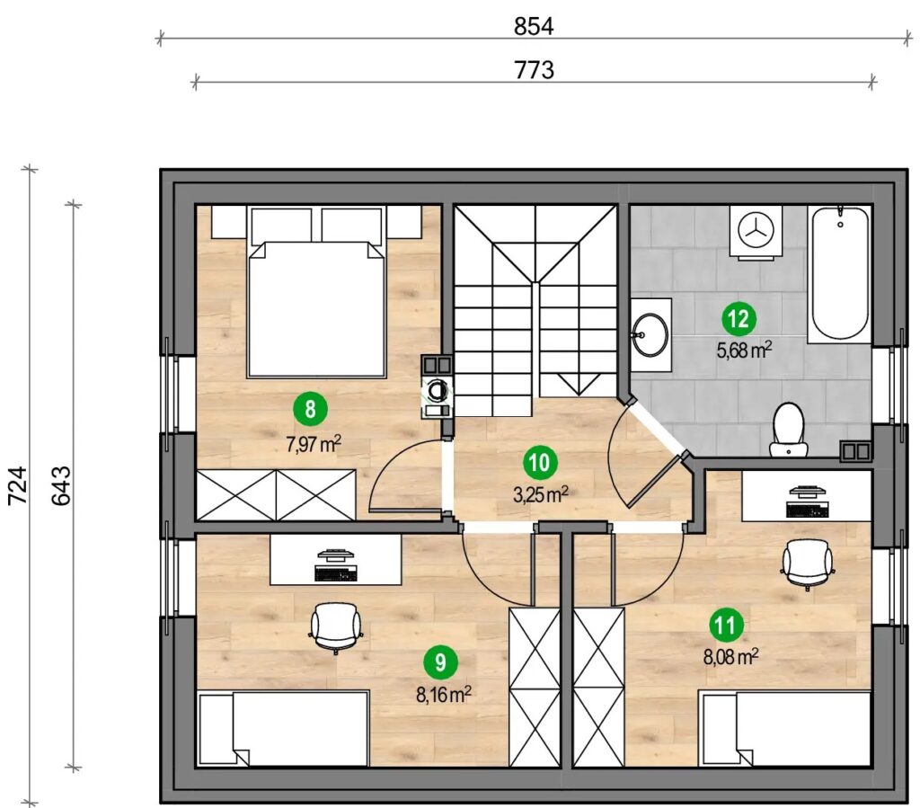
Plan mansardă utilizabilă
  1. Dormitor 2 7,97 m²
  2. Dormitor 3 8,16 m²
  3. Hol / Coridor 3,25 m²
  4. Dormitor 4 8,08 m²
  5. Baie 5,68 m²
  6. Total: 33,14 m²

Standarde de estimare

  • Fundații continue
  • Planșeu cu grinzi dense/fermă prefabricată
  • Țiglă beton ondulată
  • Încălzire electrică
  • Izolație acoperiș: Spumă PUR
  • Izolație pereți exteriori: Polistiren grafitat
  • Recuperare căldură

Estimarea nu include

  • Elemente decorative în afara conturului clădirii, de ex. cadre din beton armat, pergole din lemn
  • Terase pe sol

Date tehnice

Tip de casă:
Casă cu mansardă
Număr de camere:
5
Număr de băi:
1
Garaj:
Niciunul
Scopul construcției:
Standard de dezvoltator eficient energetic
Suprafață netă:
79,12 m²
Oferta de mai sus are caracter informativ și nu constituie o ofertă comercială.

Proiecte populare

Casă cu un singur etaj
Suprafața utilă: 243,00 m²
Preț net: 0 €
Casă cu un singur etaj
Suprafața utilă: 284,52 m²
Casă cu un singur etaj
Suprafața utilă: 323,30 m²
Casă cu mansardă
Suprafața utilă: 195,00 m²

Îți place acest proiect?

ECO 81 Classic

Completați formularul și vă vom suna înapoi pentru a vă oferi o ofertă gratuită pentru construirea unei case în zona dumneavoastră.

* Câmpuri obligatorii

Îți place acest proiect?

ECO 81 Classic

Completează formularul, iar noi te vom contacta pentru a transforma viziunea ta în realitate.

* Câmpuri obligatorii

  1. Vestibul 4,84 m²
  2. Cameră tehnică 3,92 m²
  3. WC 1,84 m²
  4. Hol / Coridor 2,12 m²
  5. Dormitor 1 7,84 m²
  6. Living + dining 18,68 m²
  7. Bucătărie 6,74 m²
  8. Total: 45,98 m²
Plan parter
  1. Dormitor 2 7,97 m²
  2. Dormitor 3 8,16 m²
  3. Hol / Coridor 3,25 m²
  4. Dormitor 4 8,08 m²
  5. Baie 5,68 m²
  6. Total: 33,14 m²
Plan mansardă utilizabilă