DPE – Firmă de construcții – antreprenor general pentru case unifamiliale. Lucrăm de luni până vineri (08:00–17:00)
Lucrăm de luni până vineri (08:00–17:00)

Sună

sau trimite

Golf

Casă cu etaj eficientă din punct de vedere energetic

VOM CONSTRUI ACEASTĂ CASĂ ÎN 11 LUNI

Descrierea proiectului

Casa se remarcă printr-o formă modernă cu acoperiș plat, ferestre mari și uși de terasă din sticlă, precum și balustrade din sticlă. Un complement interesant al conceptului este structura pergolei de deasupra unei părți a terasei. Bucătăria, sala mare de mese și livingul formează un spațiu deschis și luminos. Senzația de spațiu este accentuată de golul de deasupra sălii de mese, aflat lângă scările care duc la etaj. Sala de mese constituie astfel centrul întregii case. O soluție confortabilă pentru dormitor este baia separată, dressingul independent și ieșirea pe balcon. În afară de zona de dormit de la etaj, se află și trei camere spațioase, oferind numeroase posibilități de amenajare.

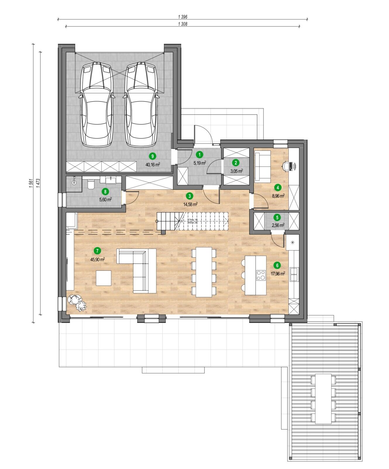
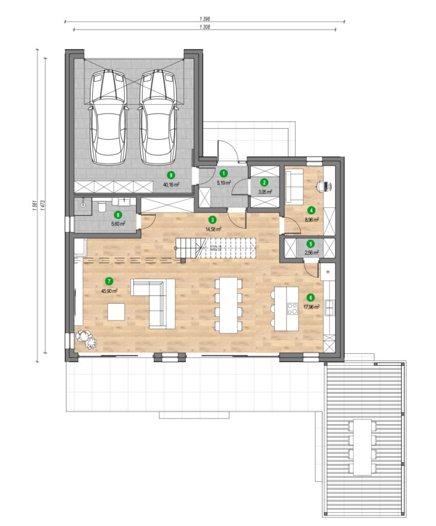
Plan parter
golf-parter-a3-1-scaled.jpg
  • Windfang: 5,19 m2
  • Garderoba: 3,05 m2
  • Komunikacja: 14,58 m2
  • Birou: 8,96 m2
  • Cămara: 2,56 m2
  • Bucătărie: 17,96 m2
  • Living + sufragerie: 45,90 m2
  • Baie: 5,60 m2
  • Garaj: 40,16 m2
  • Suprafață: utilă 142,54 m2; pardoseli: 143,96 m2
Plan mansardă utilizabilă
golf-a3-1-pietro.jpg
  • Comunicare: 21,92 m2
  • Cameră: 12,56 m2
  • Cameră: 11,83 m2
  • Cameră: 11,83 m2
  • Cameră: 13,50 m2
  • Dressing: 8,51 m2
  • Baie: 5,77 m2
  • Spălătorie: 3,26 m2
  • Baie: 5,94 m2
  • Suprafață: utilă 93,73 m2; podea: 95,12 m2

Standarde de estimare

  • Fundații continue
  • Placă cu grinzi dese/Grinzi prefabricate
  • Țiglă ondulată din beton
  • Încălzire electrică
  • Izolația acoperișului: Spumă PUR
  • Izolația pereților exteriori: Polistiren grafitat
  • Recuperare de căldură

Estimarea nu include

  • Elemente decorative în afara conturului clădirii, de exemplu, cadre din beton armat, pergole din lemn
  • Terase pe teren

Date tehnice

Tip de casă:
Casă cu un singur etaj
Număr de camere:
6
Număr de băi:
2
Garaj:
Garaj dublu
Scopul construcției:
Standard de dezvoltator eficient energetic
Suprafață netă:
243,00 m²
Oferta de mai sus are caracter informativ și nu constituie o ofertă comercială.

Proiecte populare

Casă cu un singur etaj
Suprafața utilă: 352,10 m²
Parter
Suprafața utilă: 291,00 m²
Casă cu mansardă
Suprafața utilă: 161,00 m²
Casă cu mansardă
Suprafața utilă: 195,00 m²
Preț net: 0 €

Îți place acest proiect?

Golf

Completați formularul și vă vom suna înapoi pentru a vă oferi o ofertă gratuită pentru construirea unei case în zona dumneavoastră.

* Câmpuri obligatorii

Îți place acest proiect?

Golf

Completează formularul, iar noi te vom contacta pentru a transforma viziunea ta în realitate.

* Câmpuri obligatorii

golf-parter-a3-1-scaled.jpg
  • Windfang: 5,19 m2
  • Garderoba: 3,05 m2
  • Komunikacja: 14,58 m2
  • Birou: 8,96 m2
  • Cămara: 2,56 m2
  • Bucătărie: 17,96 m2
  • Living + sufragerie: 45,90 m2
  • Baie: 5,60 m2
  • Garaj: 40,16 m2
  • Suprafață: utilă 142,54 m2; pardoseli: 143,96 m2
Plan parter
golf-a3-1-pietro.jpg
  • Comunicare: 21,92 m2
  • Cameră: 12,56 m2
  • Cameră: 11,83 m2
  • Cameră: 11,83 m2
  • Cameră: 13,50 m2
  • Dressing: 8,51 m2
  • Baie: 5,77 m2
  • Spălătorie: 3,26 m2
  • Baie: 5,94 m2
  • Suprafață: utilă 93,73 m2; podea: 95,12 m2
Plan mansardă utilizabilă