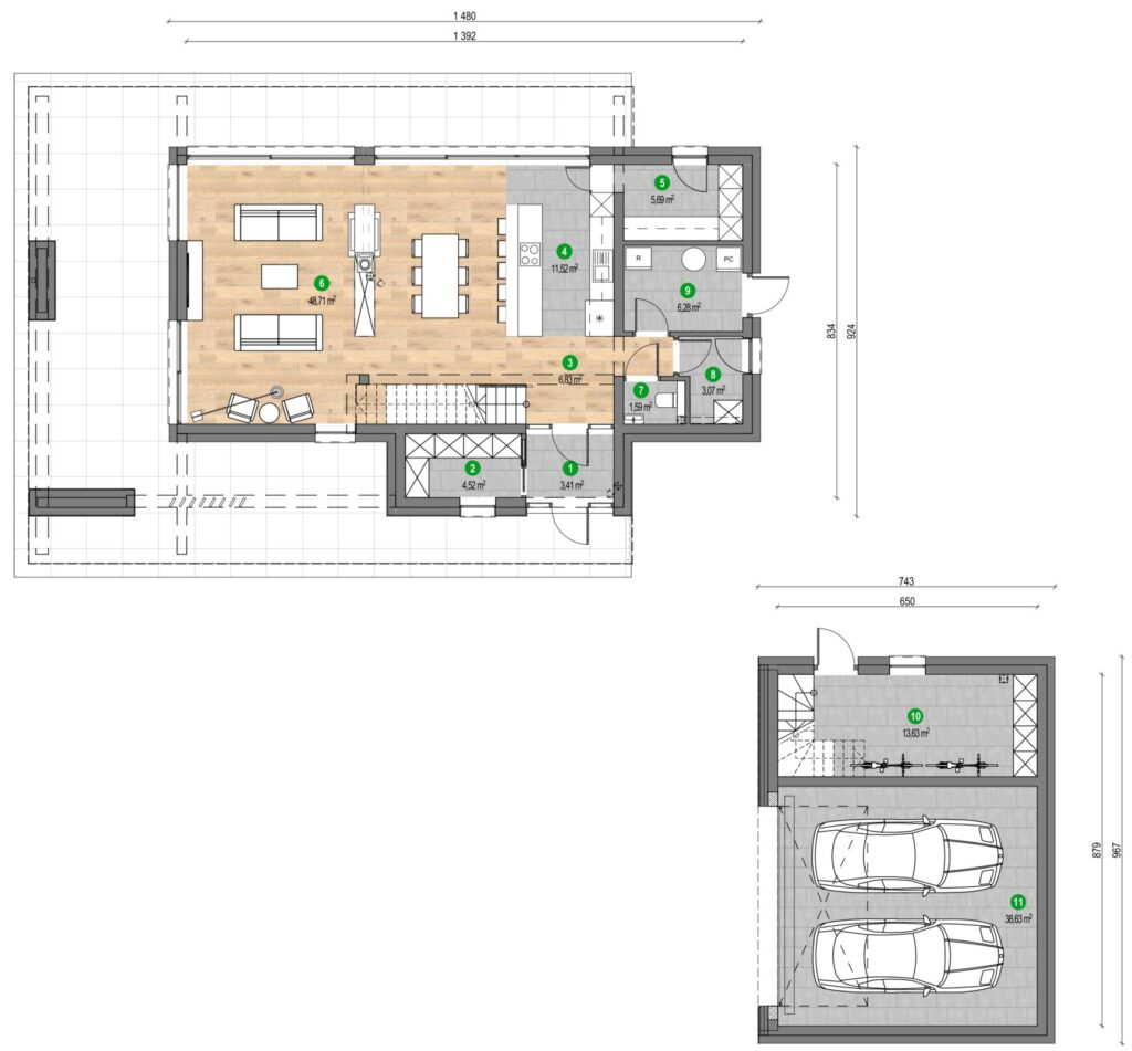
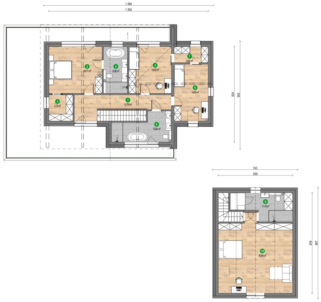
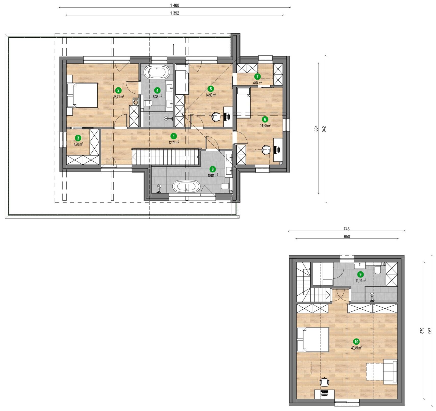
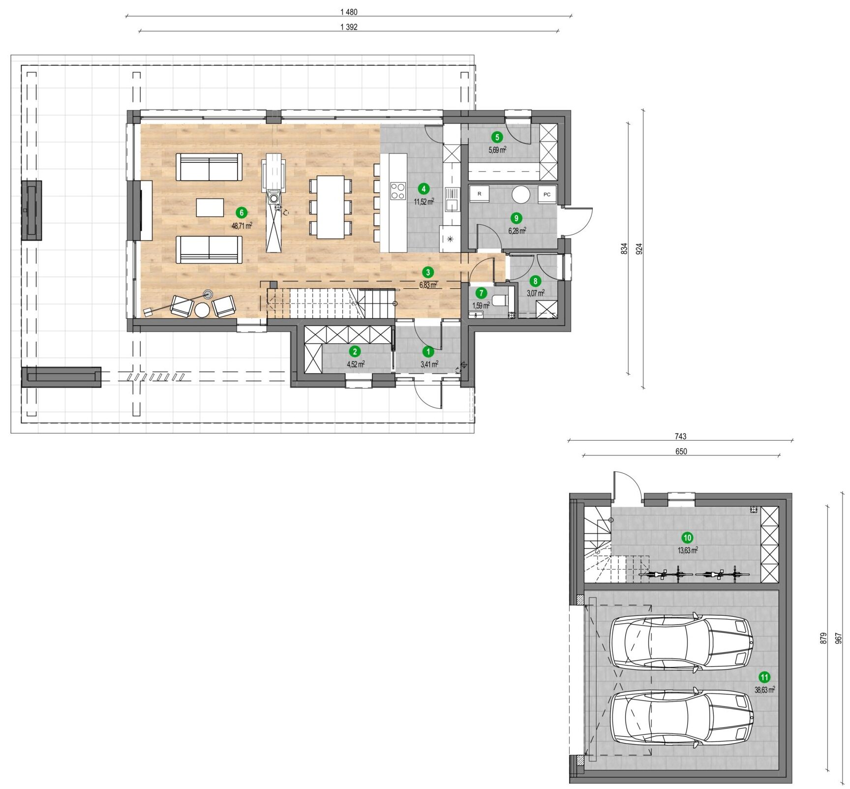
Acest proiect va interesa persoanele care preferă combinațiile moderne cu o notă de clasicism. Clădirea combină funcționalitatea parterului cu farmecul mansardei, iar ceea ce atrage atenția în mod deosebit sunt pereții mari din sticlă din living, care creează aproape un ecran de cinema pentru panorama peisajului înconjurător. Chiar alături se află un hambar de design într-o nuanță profundă de negru, subliniind caracterul unic al locului.


