DPE – Firmă de construcții – antreprenor general pentru case unifamiliale. Lucrăm de luni până vineri (08:00–17:00)
Lucrăm de luni până vineri (08:00–17:00)

Sună

sau trimite

PRO 10

Casă parter cu mansardă utilizabilă

VOM CONSTRUI ACEASTĂ CASĂ ÎN 8 LUNI

Formă simplă, elegantă

Aranjament funcțional al interiorului

Proiect ușor de realizat

Ideal pentru familie

Descrierea proiectului

Acest proiect de casă unifamilială se caracterizează printr-o formă simplă, modernă, cu un aspect minimalist. Utilizarea unor suprafețe vitrate mari asigură o iluminare excelentă a interiorului și permite bucurarea de priveliști frumoase către grădină și împrejurimi. Acoperișul în două ape, într-un stil clasic, conferă clădirii eleganță, iar finisajele naturale, cum ar fi elementele din lemn ale fațadei, se integrează armonios în peisaj.

Interiorul casei a fost proiectat având în vedere confortul și funcționalitatea. La parter se află un living spațios, conectat cu bucătăria și zona de luat masa, creând astfel o zonă de zi deschisă, ideală pentru petrecerea timpului cu familia și prietenii. Ușile vitrate către terasă duc direct în grădină, extinzând suplimentar spațiul de relaxare. Dormitoarele au fost planificate ca locuri liniștite pentru relaxare, asigurând intimitate și confort. Un alt avantaj este locul acoperit pentru mașină.

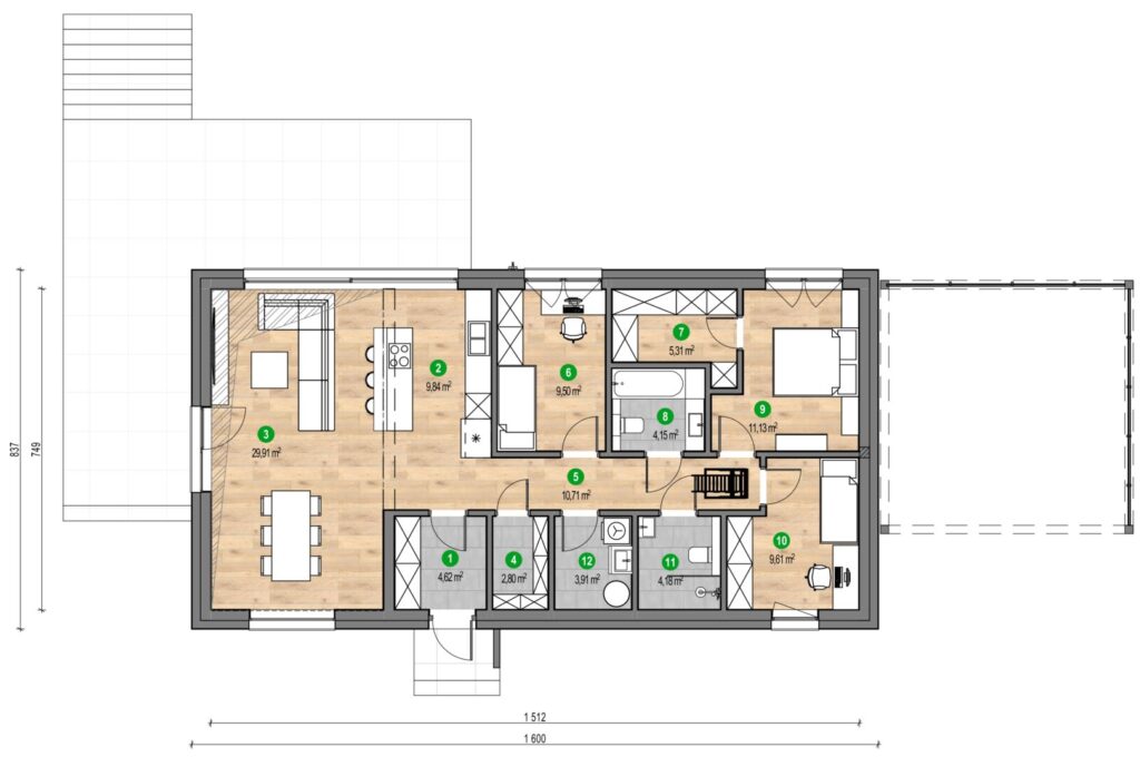
Plan parter
  1. Vestibul: 4,62 m2
  2. Bucătărie: 9,84 m2
  3. Living + loc de luat masa: 29,91 m2
  4. Cămară: 2,80 m2
  5. Hol: 10,71 m2
  6. Cameră: 9,50 m2
  7. Garderobă: 5,31 m2
  8. Baie: 4,15 m2
  9. Cameră: 11,13 m2
  10. Cameră: 9,61 m2
  11. Baie: 4,18 m2
  12. Cameră tehnică: 3,91 m2
  13. Suprafață: utilă 105,67 m2; pardoseală: 105,67 m2

Standarde de estimare

  • Fundații continue
  • Placă de beton cu nervuri dese/Grinzi prefabricate
  • Țiglă beton ondulată
  • Încălzire electrică
  • Izolație acoperiș: Spumă poliuretanică
  • Izolație pereți exteriori: Polistiren grafitat
  • Recuperare a căldurii

Estimarea nu include

  • Elemente decorative în afara conturului clădirii, de exemplu cadre din beton armat, pergole din lemn
  • Terase la sol

Date tehnice

Tip de casă:
Parter
Număr de camere:
4
Număr de băi:
2
Garaj:
Niciunul
Scopul construcției:
Standard de dezvoltator eficient energetic
Suprafață netă:
106,00 m²
Oferta de mai sus are caracter informativ și nu constituie o ofertă comercială.

Proiecte populare

Casă cu un singur etaj
Suprafața utilă: 238,00 m²
Parter
Suprafața utilă: 63,00 m²
Preț net: 0 €
Parter
Suprafața utilă: 99,00 m²
Preț net: 0 €
Casă cu mansardă
Suprafața utilă: 161,00 m²

Îți place acest proiect?

PRO 10

Completați formularul și vă vom suna înapoi pentru a vă oferi o ofertă gratuită pentru construirea unei case în zona dumneavoastră.

* Câmpuri obligatorii

Îți place acest proiect?

PRO 10

Completează formularul, iar noi te vom contacta pentru a transforma viziunea ta în realitate.

* Câmpuri obligatorii

  1. Vestibul: 4,62 m2
  2. Bucătărie: 9,84 m2
  3. Living + loc de luat masa: 29,91 m2
  4. Cămară: 2,80 m2
  5. Hol: 10,71 m2
  6. Cameră: 9,50 m2
  7. Garderobă: 5,31 m2
  8. Baie: 4,15 m2
  9. Cameră: 11,13 m2
  10. Cameră: 9,61 m2
  11. Baie: 4,18 m2
  12. Cameră tehnică: 3,91 m2
  13. Suprafață: utilă 105,67 m2; pardoseală: 105,67 m2
Plan parter
Wiatrołap: 4,68 m2 Pralnia: 5,71 m2 Gabinet: 9,14 m2 Łazienka: 5,23 m2 Salon z kuchnią: 53,86 m2 Komunikacja: 12,93 m2 Garaż: 23,86 m2 Powierzchnia: użytkowa 115,41 m2; podłóg: 116,90 m2
Plan subsol
Wiatrołap: 4,68 m2 Pralnia: 5,71 m2 Gabinet: 9,14 m2 Łazienka: 5,23 m2 Salon z kuchnią: 53,86 m2 Komunikacja: 12,93 m2 Garaż: 23,86 m2 Powierzchnia: użytkowa 115,41 m2; podłóg: 116,90 m2
Plan mansardă utilizabilă