DPE – Firmă de construcții – antreprenor general pentru case unifamiliale. Lucrăm de luni până vineri (08:00–17:00)
Lucrăm de luni până vineri (08:00–17:00)

Sună

sau trimite

PRO 11

Casă parter energoeconomică

VOM CONSTRUI ACEASTĂ CASĂ ÎN 11 LUNI

Dispunere parter

Ferestre mari

Ideal pentru cuplu

Amenajare funcțională a încăperilor

Descrierea proiectului

Acest proiect este o casă modernă parter, ideală pentru o familie care caută o soluție funcțională și estetică. Clădirea, cu o formă compactă și dreptunghiulară, combină un aspect clasic cu accente moderne. Fațada este luminoasă, cu panouri din lemn, care îi conferă eleganță și un aspect natural. Acoperișul în șarpantă asigură un caracter tradițional, iar geamurile mari aduc multă lumină naturală în interior, sporind confortul utilizării.

Casa este proiectată într-un mod gândit și funcțional. Interiorul constă într-o zonă de zi spațioasă, care cuprinde livingul, sufrageria și o bucătărie deschisă. Zona de noapte include dormitoare confortabile și o baie, garantând intimitatea locatarilor. Proiectul ia în considerare și o cameră de serviciu, precum și o centrală termică, ceea ce facilitează funcționarea zilnică.

Plan parter
  1. Vestibul: 5,51 m2
  2. Bucătărie: 7,37 m2
  3. Living + loc de luat masa: 30,40 m2
  4. Hol: 6,49 m2
  5. Casa scării: 6,92 m2
  6. Dormitor: 15,07 m2
  7. Birou: 11,30 m2
  8. Toaletă: 1,64 m2
  9. Baie: 6,19 m2
  10. Suprafață: utilă 90,89 m2; pardoseală: 90,89 m2
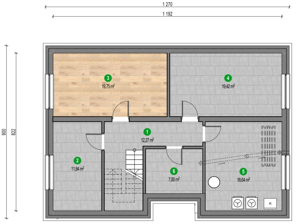
Plan subsol
  1. Hol: 12,27 m2
  2. Atelier: 11,84 m2
  3. Sală de fitness: 19,75 m2
  4. Cameră tehnică: 19,42 m2
  5. Spațiu tehnic/spălătorie: 18,64 m2
  6. Cămară: 7,00 m2
  7. Suprafață: utilă 82,79 m2; pardoseală: 88,92 m2

Standarde de estimare

  • Fundații de șapă
  • Șapă cu grinzi dese/Grinzi prefabricate
  • Țiglă beton ondulată
  • Încălzire electrică
  • Izolație a acoperișului: Spumă PUR
  • Izolație a pereților exteriori: Polistiren grafitat
  • Recuperare de căldură

Estimarea nu include

  • Elemente decorative în afara conturului clădirii, de exemplu cadre din beton armat, pergole din lemn
  • Terase pe sol

Date tehnice

Tip de casă:
Parter
Număr de camere:
3
Număr de băi:
1
Garaj:
Niciunul
Scopul construcției:
Standard de dezvoltator eficient energetic
Suprafață netă:
180,00 m²
Oferta de mai sus are caracter informativ și nu constituie o ofertă comercială.

Proiecte populare

Casă cu un singur etaj
Suprafața utilă: 352,10 m²
Casă cu un singur etaj
Suprafața utilă: 284,52 m²
Casă cu mansardă
Suprafața utilă: 380,00 m²
Parter
Suprafața utilă: 116,00 m²
Preț net: 617 000 €

Îți place acest proiect?

PRO 11

Completați formularul și vă vom suna înapoi pentru a vă oferi o ofertă gratuită pentru construirea unei case în zona dumneavoastră.

* Câmpuri obligatorii

Îți place acest proiect?

PRO 11

Completează formularul, iar noi te vom contacta pentru a transforma viziunea ta în realitate.

* Câmpuri obligatorii

  1. Vestibul: 5,51 m2
  2. Bucătărie: 7,37 m2
  3. Living + loc de luat masa: 30,40 m2
  4. Hol: 6,49 m2
  5. Casa scării: 6,92 m2
  6. Dormitor: 15,07 m2
  7. Birou: 11,30 m2
  8. Toaletă: 1,64 m2
  9. Baie: 6,19 m2
  10. Suprafață: utilă 90,89 m2; pardoseală: 90,89 m2
Plan parter
Wiatrołap: 4,68 m2 Pralnia: 5,71 m2 Gabinet: 9,14 m2 Łazienka: 5,23 m2 Salon z kuchnią: 53,86 m2 Komunikacja: 12,93 m2 Garaż: 23,86 m2 Powierzchnia: użytkowa 115,41 m2; podłóg: 116,90 m2
Plan mansardă utilizabilă
Wiatrołap: 4,68 m2 Pralnia: 5,71 m2 Gabinet: 9,14 m2 Łazienka: 5,23 m2 Salon z kuchnią: 53,86 m2 Komunikacja: 12,93 m2 Garaż: 23,86 m2 Powierzchnia: użytkowa 115,41 m2; podłóg: 116,90 m2
Plan etaj
  1. Hol: 12,27 m2
  2. Atelier: 11,84 m2
  3. Sală de fitness: 19,75 m2
  4. Cameră tehnică: 19,42 m2
  5. Spațiu tehnic/spălătorie: 18,64 m2
  6. Cămară: 7,00 m2
  7. Suprafață: utilă 82,79 m2; pardoseală: 88,92 m2
Plan subsol