DPE – Firmă de construcții – antreprenor general pentru case unifamiliale. Lucrăm de luni până vineri (08:00–17:00)
Lucrăm de luni până vineri (08:00–17:00)

Sună

sau trimite

PRO 16

Casă parter cu pod utilizabil

VOM CONSTRUI ACEASTĂ CASĂ ÎN 8 LUNI

În tipul unei hambare moderne

Stil minimalist

Ideal pentru familie

Sistem funcțional

Descrierea proiectului

Proiectul unei case unifamiliale cu o formă clasică și soluții moderne este o propunere excelentă pentru familiile care caută un loc confortabil pentru a trăi. Clădirea cu două niveluri, cu o formă simplă și un acoperiș în două ape, se caracterizează printr-o dispunere funcțională a încăperilor, ceea ce îi va satisface chiar și pe cei mai exigenți investitori. La parter este prevăzut un living spațios cu sufragerie, care se conectează fluid cu bucătăria deschisă, favorizând petrecerea timpului împreună și integrarea membrilor familiei. Un alt avantaj este ieșirea confortabilă pe terasă, ideală pentru întâlniri de vară cu prietenii. La mansardă se află dormitoare private și o baie, oferind locatarilor intimitate și confort. Utilizarea panoramelor mari permite iluminarea naturală a spațiilor interioare, ceea ce ridică standardul de viață și conferă încăperilor un caracter deosebit. Acoperișul simplu în două ape și detaliile minimaliste ale fațadei asigură un aspect modern și ușurință în întreținere.

Plan parter
  1. Vestibul: 3,60 m2
  2. Hol: 3,83 m2
  3. Living + bucătărie + loc de luat masa: 23,28 m2
  4. Debara: 1,86 m2
  5. Birou: 8,57 m2
  6. Baie: 4,39 m2
  7. Cameră tehnică: 3,57 m2
  8. Suprafață: utilă 49,10 m2; pardoseală: 50,41 m2
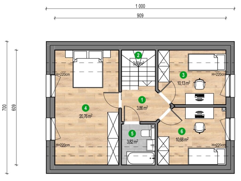
Plan mansardă utilizabilă
  1. Hol: 3,86 m2
  2. Scări: 3,63 m2
  3. Cameră: 10,13 m2
  4. Cameră: 20,76 m2
  5. Baie: 3,82 m2
  6. Cameră: 10,68 m2
  7. Suprafață: utilă 43,71 m2; pardoseală: 52,88 m2

Standarde de estimare

  • Fundații continue
  • Tavan cu grinzi dense/Grinzi prefabricate
  • Țiglă beton ondulată
  • Încălzire electrică
  • Izolare acoperiș: Spumă PUR
  • Izolare pereți exteriori: Polistiren grafitat
  • Recuperare căldură

Estimarea nu include

  • Elemente decorative în afara conturului clădirii, de ex. cadre din beton armat, pergole din lemn
  • Terase pe sol

Date tehnice

Tip de casă:
Casă cu mansardă
Număr de camere:
5
Număr de băi:
2
Garaj:
Niciunul
Scopul construcției:
Standard de dezvoltator eficient energetic
Suprafață netă:
101,00 m²
Oferta de mai sus are caracter informativ și nu constituie o ofertă comercială.

Proiecte populare

Parter
Suprafața utilă: 99,00 m²
Preț net: 0 €
Casă cu mansardă
Suprafața utilă: 71,00 m²
Preț net: 0 €
Casă cu un singur etaj
Suprafața utilă: 243,00 m²
Preț net: 0 €
Casă cu mansardă
Suprafața utilă: 161,00 m²

Îți place acest proiect?

PRO 16

Completați formularul și vă vom suna înapoi pentru a vă oferi o ofertă gratuită pentru construirea unei case în zona dumneavoastră.

* Câmpuri obligatorii

Îți place acest proiect?

PRO 16

Completează formularul, iar noi te vom contacta pentru a transforma viziunea ta în realitate.

* Câmpuri obligatorii

  1. Vestibul: 3,60 m2
  2. Hol: 3,83 m2
  3. Living + bucătărie + loc de luat masa: 23,28 m2
  4. Debara: 1,86 m2
  5. Birou: 8,57 m2
  6. Baie: 4,39 m2
  7. Cameră tehnică: 3,57 m2
  8. Suprafață: utilă 49,10 m2; pardoseală: 50,41 m2
Plan parter
  1. Hol: 3,86 m2
  2. Scări: 3,63 m2
  3. Cameră: 10,13 m2
  4. Cameră: 20,76 m2
  5. Baie: 3,82 m2
  6. Cameră: 10,68 m2
  7. Suprafață: utilă 43,71 m2; pardoseală: 52,88 m2
Plan mansardă utilizabilă
Wiatrołap: 4,68 m2 Pralnia: 5,71 m2 Gabinet: 9,14 m2 Łazienka: 5,23 m2 Salon z kuchnią: 53,86 m2 Komunikacja: 12,93 m2 Garaż: 23,86 m2 Powierzchnia: użytkowa 115,41 m2; podłóg: 116,90 m2
Plan subsol