DPE – Firmă de construcții – antreprenor general pentru case unifamiliale. Lucrăm de luni până vineri (08:00–17:00)
Lucrăm de luni până vineri (08:00–17:00)

Sună

sau trimite

PRO 17

Casă parterană eficientă energetic

VOM CONSTRUI ACEASTĂ CASĂ ÎN 8 LUNI

Cost redus al construcției

Pentru cuplu

Clasic

Pe un teren îngust

Descrierea proiectului

Proiectul prezintă o casă modernă, eficientă din punct de vedere energetic, cu un singur nivel și acoperiș clasic în două ape, care combină forma tradițională cu stilul contemporan. Volumul simplu al clădirii, cu caracter minimalist, este îmbogățit de un acoperiș roșu, care îi conferă un aspect cald și primitor, subliniind totodată legătura cu arhitectura tradițională. Fațada este păstrată în nuanțe deschise, ceea ce mărește vizual clădirea, iar ușa de intrare amplasată central se distinge prin culoarea verde, adăugând astfel un accent viu întregii compoziții.

Interiorul casei a fost proiectat având în vedere confortul utilizatorului, oferind o zonă de zi deschisă care combină bucătăria, sufrageria și livingul. Ferestrele mari permit pătrunderea unei cantități mari de lumină naturală, ceea ce favorizează eficiența energetică și creează o atmosferă plăcută. Datorită unei configurații funcționale simple, acest proiect este ideal pentru persoanele care apreciază confortul și utilizarea eficientă a spațiului.

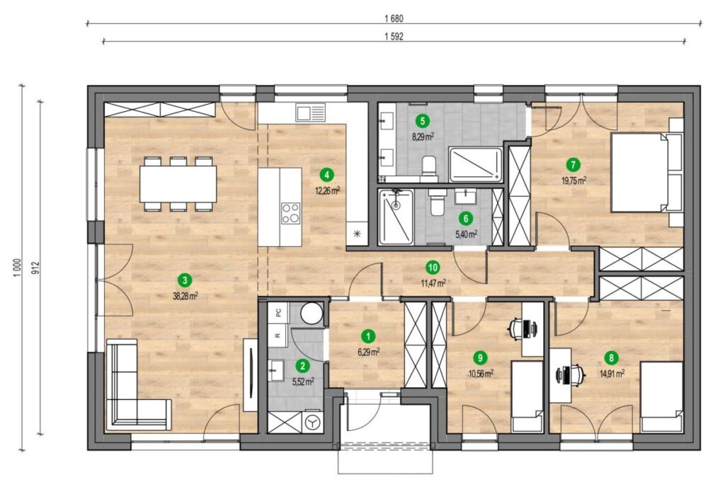
Plan parter
  1. Vestibul: 6,29 m2
  2. Cameră tehnică: 5,52 m2
  3. Living + loc de luat masa: 38,28 m2
  4. Bucătărie: 12,26 m2
  5. Baie: 8,29 m2
  6. Baie: 5,40 m2
  7. Dormitor: 19,75 m2
  8. Cameră: 14,91 m2
  9. Cameră: 10,56 m2
  10. Hol: 11,47 m2
  11. Suprafață: utilă 132,78 m2 ; pardoseală: 134,64 m2

Standarde de estimare

  • Fundații continue
  • Placă cu nervuri dese/Grinzi prefabricate
  • Țiglă beton ondulată
  • Încălzire electrică
  • Izolație acoperiș: Spumă PUR
  • Izolație pereți exteriori: Polistiren grafitat
  • Ventilație mecanică cu recuperare de căldură

Estimarea nu include

  • Elemente decorative în afara conturului clădirii, de exemplu cadre din beton armat, pergole din lemn
  • Terase pe teren

Date tehnice

Tip de casă:
Parter
Număr de camere:
4
Număr de băi:
2
Garaj:
Niciunul
Scopul construcției:
Standard de dezvoltator eficient energetic
Suprafață netă:
135,00 m²
Oferta de mai sus are caracter informativ și nu constituie o ofertă comercială.

Proiecte populare

Casă cu un singur etaj
Suprafața utilă: 238,00 m²
Casă cu mansardă
Suprafața utilă: 380,00 m²
Casă cu un singur etaj
Suprafața utilă: 323,30 m²
Parter
Suprafața utilă: 291,00 m²

Îți place acest proiect?

PRO 17

Completați formularul și vă vom suna înapoi pentru a vă oferi o ofertă gratuită pentru construirea unei case în zona dumneavoastră.

* Câmpuri obligatorii

Îți place acest proiect?

PRO 17

Completează formularul, iar noi te vom contacta pentru a transforma viziunea ta în realitate.

* Câmpuri obligatorii

  1. Vestibul: 6,29 m2
  2. Cameră tehnică: 5,52 m2
  3. Living + loc de luat masa: 38,28 m2
  4. Bucătărie: 12,26 m2
  5. Baie: 8,29 m2
  6. Baie: 5,40 m2
  7. Dormitor: 19,75 m2
  8. Cameră: 14,91 m2
  9. Cameră: 10,56 m2
  10. Hol: 11,47 m2
  11. Suprafață: utilă 132,78 m2 ; pardoseală: 134,64 m2
Plan parter
Wiatrołap: 4,68 m2 Pralnia: 5,71 m2 Gabinet: 9,14 m2 Łazienka: 5,23 m2 Salon z kuchnią: 53,86 m2 Komunikacja: 12,93 m2 Garaż: 23,86 m2 Powierzchnia: użytkowa 115,41 m2; podłóg: 116,90 m2
Plan subsol
Wiatrołap: 4,68 m2 Pralnia: 5,71 m2 Gabinet: 9,14 m2 Łazienka: 5,23 m2 Salon z kuchnią: 53,86 m2 Komunikacja: 12,93 m2 Garaż: 23,86 m2 Powierzchnia: użytkowa 115,41 m2; podłóg: 116,90 m2
Plan mansardă utilizabilă